دیزاین داخلی درحد منطقه یک، طراحی خاص سوپر لوکس، دوبر، آفتابگیر، غرق در نور، ویو کوه سالن یک تکه بزرگ، پرده خور، پنجره سرتاسری خوش نقشه سه خواب مستر تراس، لابی مجلل مبله لابی من 24 ساعته، همراه با تیم تاسیسات، سالن ورزش بدنسازی ( خانم ها و آقایان )، سالن اجتماعات ، سیستم ، هلی پد، سیستم اعلام و اطفا حریق، سیستم نظارت تصویری کلیه طبقات و مشاعات، پزشکان 24 ساعت سازه برتر منطقه ۲۲ از نظر ایمنی سازه ، اسکلت بتنی، عایق صوتی و دما منطقه ای خوش آب و هوا به دور از پارازیت و آلودگی، درب داخلی ضد آب ۲۵ سال گارانتی ،چیلر، منطقه روبه رشد، مناسب سرمایه گذاری و سکونت، CCTV سیستم
منطقه ۲۲ تهران جدیدترین منطقه شهری تهران است که در شمال غرب تهران واقع شدهاست. منطقه ۲۲ از نظر جغرافیایی، بزرگترین قطعه پایتخت ایران محسوب میشود. این منطقه از شمال به ارتفاعات البرز، از شرق به منطقه ۵ شهرداری تهران، از غرب به محدوده وردآورد شمالی و از جنوب به آزادراه تهران-کرج محدود میگردد. مساحت این منطقه حدود ۶۲۰۰ هکتار است که از این مساحت حدود ۱۳۰۰ هکتار متعلق به فضای سبز میباشد.
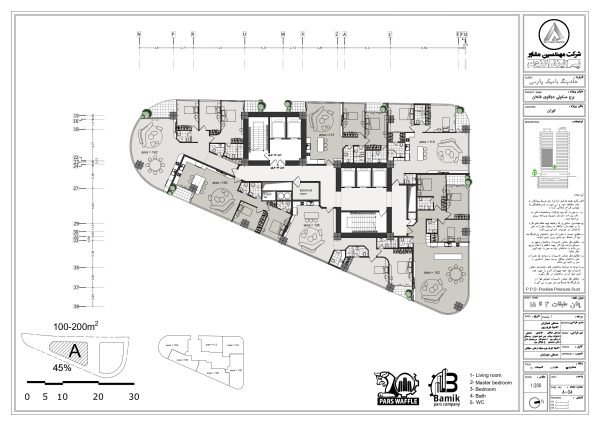
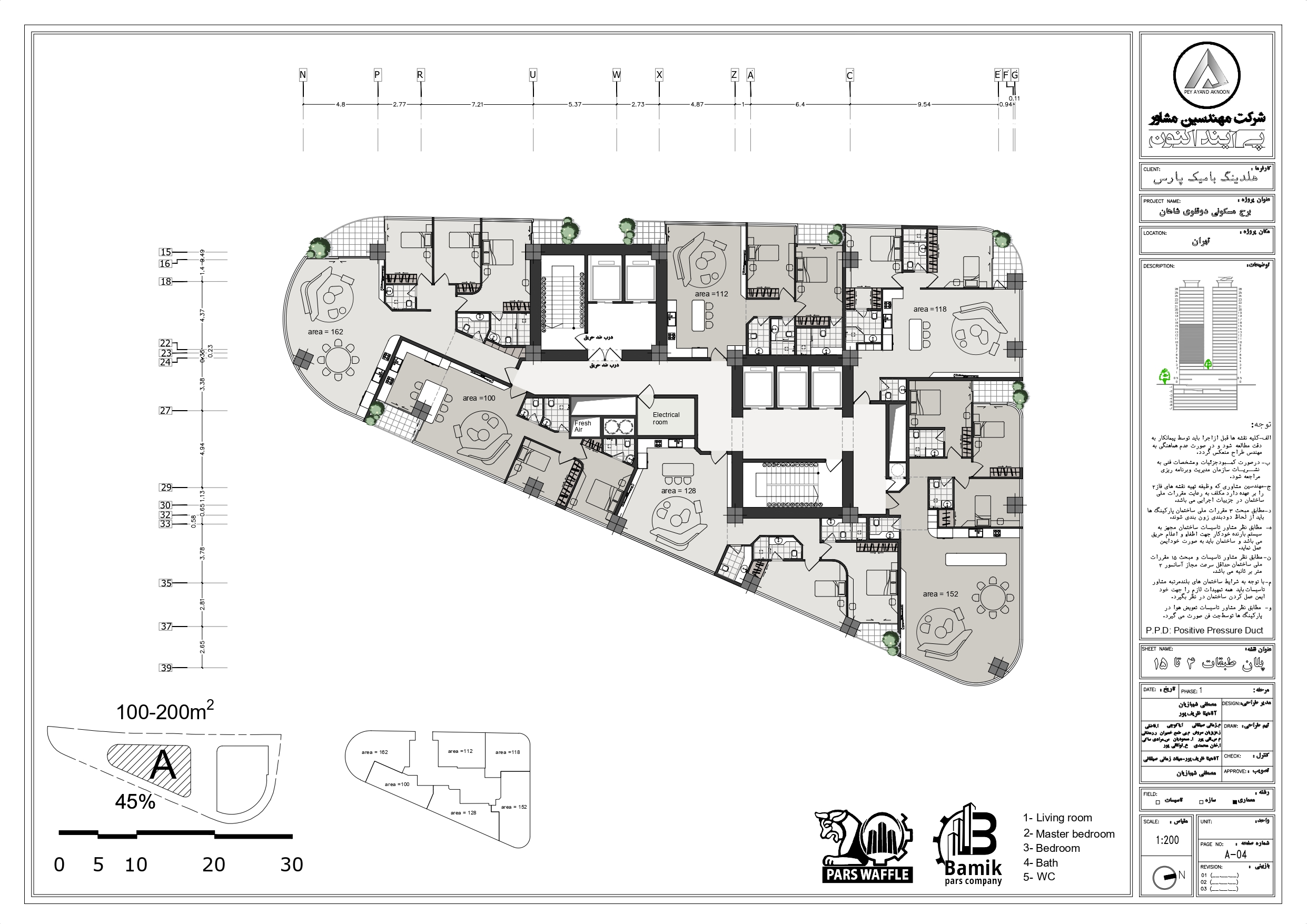
پروژه در زمینی به مساحت 3985 متربربع با مالکیت شخصی با سند تک برگ،با تراکم کل مفید و مشاع 58000 مترمربع و در قالب یک بلوک 30 طبقه مسکونی بعلاوه 4طبقه پارکینگ و لابی با ارتفاع سقف 7متر و شامل تجاری در حال ساخت میباشد.متراژهای پروژه 60 متری-90متری-120متری-150متری و 180 متری میباشد. طبق نقشه هر طبقه 10 واحد و 12 واحد میباشند. مجموع واحدهای مسکونی 312 واحد میباشد











